HeidAway Sylt - Schönes Appartment mit TerrasseGarten
Braderup
eigener Transport
9.0/10
Sehen den Preis anFotos HeidAway Sylt - Schönes Appartment mit TerrasseGarten
Braderup - 10b M.-T.-Buchholz-Stich
Die Unterkunft HeidAway Sylt - Schönes Appartment mit TerrasseGarten ist gelegen in Braderup, 5,5 km von Bahnhof Westerland und 5,6 km von Freizeitbad Sylter Welle, in einer Gegend mit Möglichkeiten zum Fahrradfahren. 1,8 km von Strand Munkmarsch entfernt gelegen bietet die Unterkunft einen Garten und einen kostenlosen Privatparkplatz.
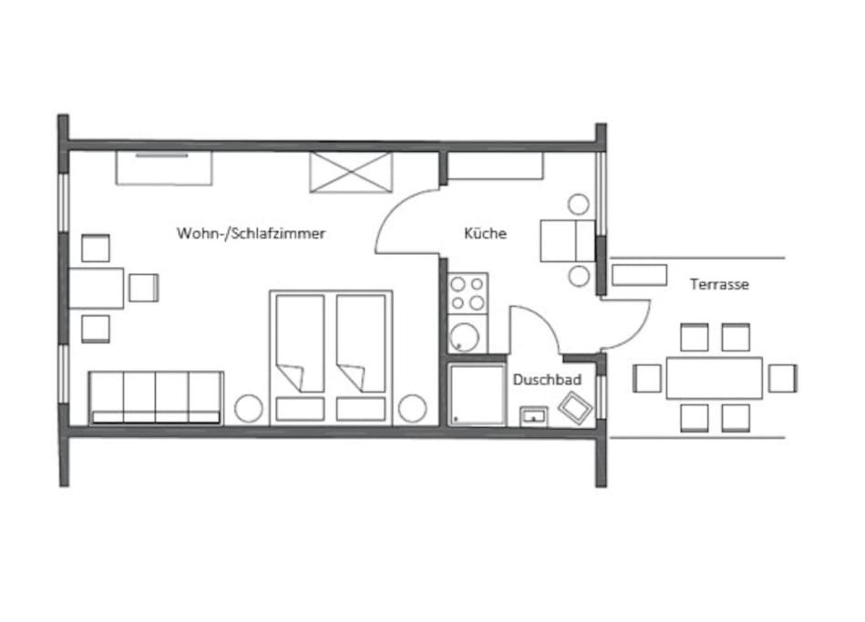
Diese Ferienwohnung ist eingerichtet mit 1 Schlafzimmer, 1 Badezimmer, Bettwäsche, Handtüchern, einem Flachbild-TV mit Kabelkanälen, einem Essbereich, einer voll ausgestatteten Küche und einer Terrasse mit Gartenblick.
Sylt Aquarium liegt 6,7 km von der Unterkunft HeidAway Sylt - Schönes Appartment mit TerrasseGarten entfernt, während Hörnum Hafen 23 km entfernt ist. Der nächstgelegene Flughafen ist der Flughafen Sylt, 2 km von der Unterkunft HeidAway Sylt - Schönes Appartment mit TerrasseGarten entfernt.
Check-in ab 16:00 und endet um 10:00.
In dieser Unterkunft sind weder Junggesellen-Junggesellinnenabschiede noch ähnliche Feiern erlaubt.
Bitte teilen Sie der Unterkunft Ihre voraussichtliche Ankunftszeit im Voraus mit. Nutzen Sie hierfür bei der Buchung das Feld für besondere Anfragen oder kontaktieren Sie die Unterkunft direkt.
Gäste unter 18 Jahren können nur mit einem Elternteil oder gesetzlichen Vertreter einchecken.
Von einem privaten Gastgeber geführt
Apartment mit 1 Schlafzimmer. Boasting a private entrance, this apartment also comes with 1 bedroom, a seating area and 1 bathroom with a shower and a hairdryer. Meals can be prepared in the well-fitted kitchen, which features a stovetop, a refrigerator, a dishwasher and kitchenware. Featuring a terrace with garden views, this apartment also features a tea and coffee maker and a flat-screen TV with cable channels. The unit has 2 beds.
Weitere Informationen zum Angebot Deutschland - Braderup - HeidAway Sylt - Schönes Appartment mit TerrasseGarten, Meinungen von Urlaubern sowie verfügbare Termine finden Sie auf der Website unser Partner.
Jetzt buchen
Das Angebot unseres Partners: Booking.com BG.68958









